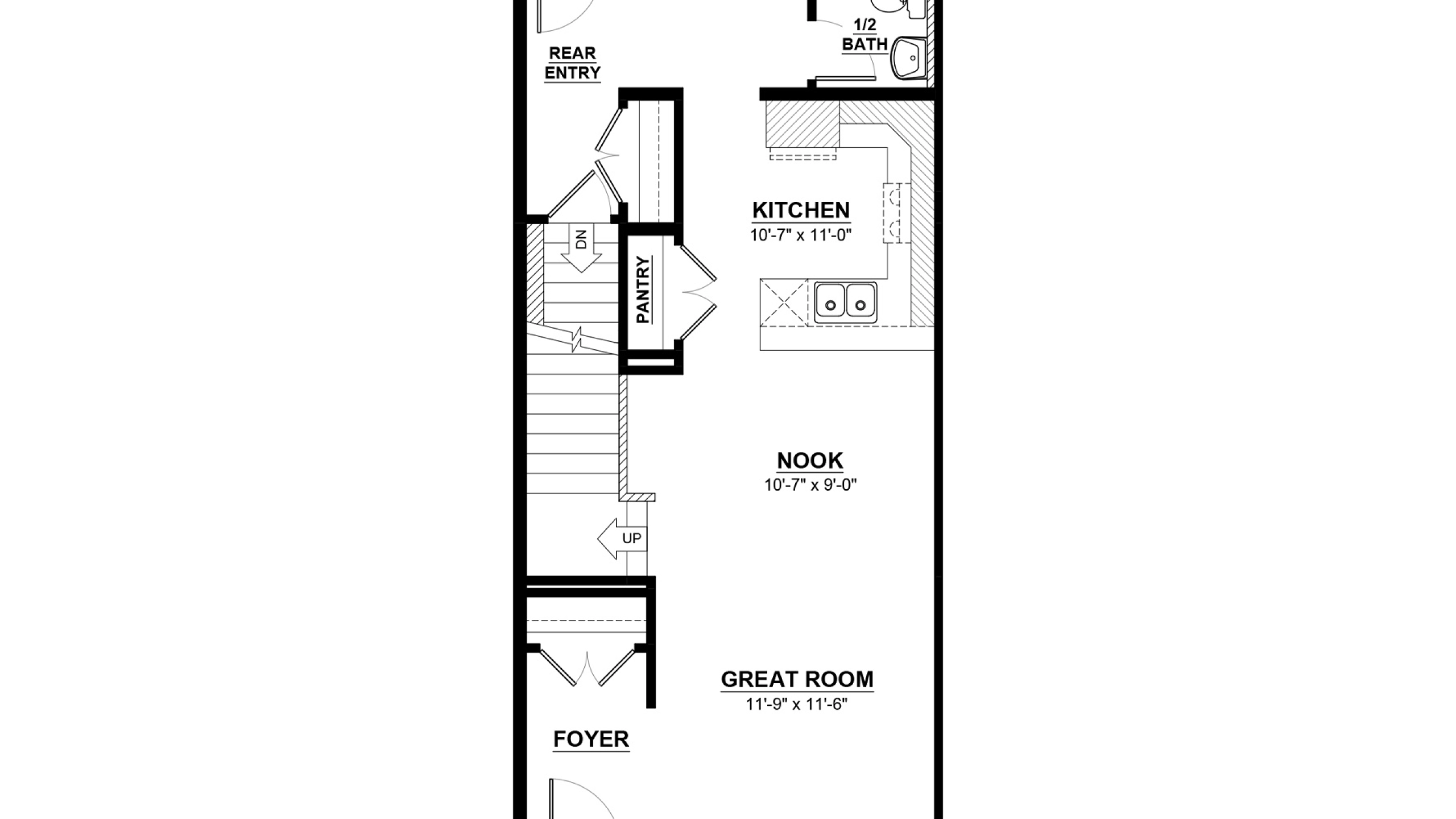
The Focus-t is a two-storey townhome covering 1,400 square feet and featuring 3 bedrooms, 2.5 bathrooms, and a 9-foot main floor ceilings. Enter into the foyer where you can access the great room to relax in. This area is open to the dining nook and kitchen, truly the hub of the home. The kitchen includes a pantry and an extended eating bar. At the rear of the home you’ll find a storage closet and a half bath, nicely tucked around the corner for privacy. Head upstairs where the beautiful laundry room is conveniently located, along with 3 cozy bedrooms. The Primary Bedroom features a walk-in closet and an airy ensuite with a window for additional light. Consider adding a basement development for even more family space.
Floorplans & Photos Explore The Focus
Actual product may differ slightly from the images, floor plans and renderings shown.
Communities This model is available to build in...

Summerlea
Subscribe to our newsletter
Treaty One Territory
We acknowledge that the land on which the Daytona Homes Winnipeg office resides is on Treaty One Territory; traditional territory of the Anishinaabeg, Cree, Oji-Cree, Dakota, and Dene Peoples, and on the homeland of the Métis Nation.
© 2025 Daytona Homes. All Rights Reserved