8798 Edgemont Link NW

8798 Edgemont Link NW

Home type: Single Family Detached Garage

3 Bed 2.5 Bath 1537 square feet

Priced at
$461,188

Pre-GST. Includes home & lot.

*Prices subject to change without notice. E.&O.E.

Possession Date August 2026

Included Features

  • Basement Plumbing Roughed-In
  • Side Entry

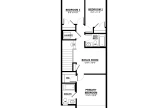
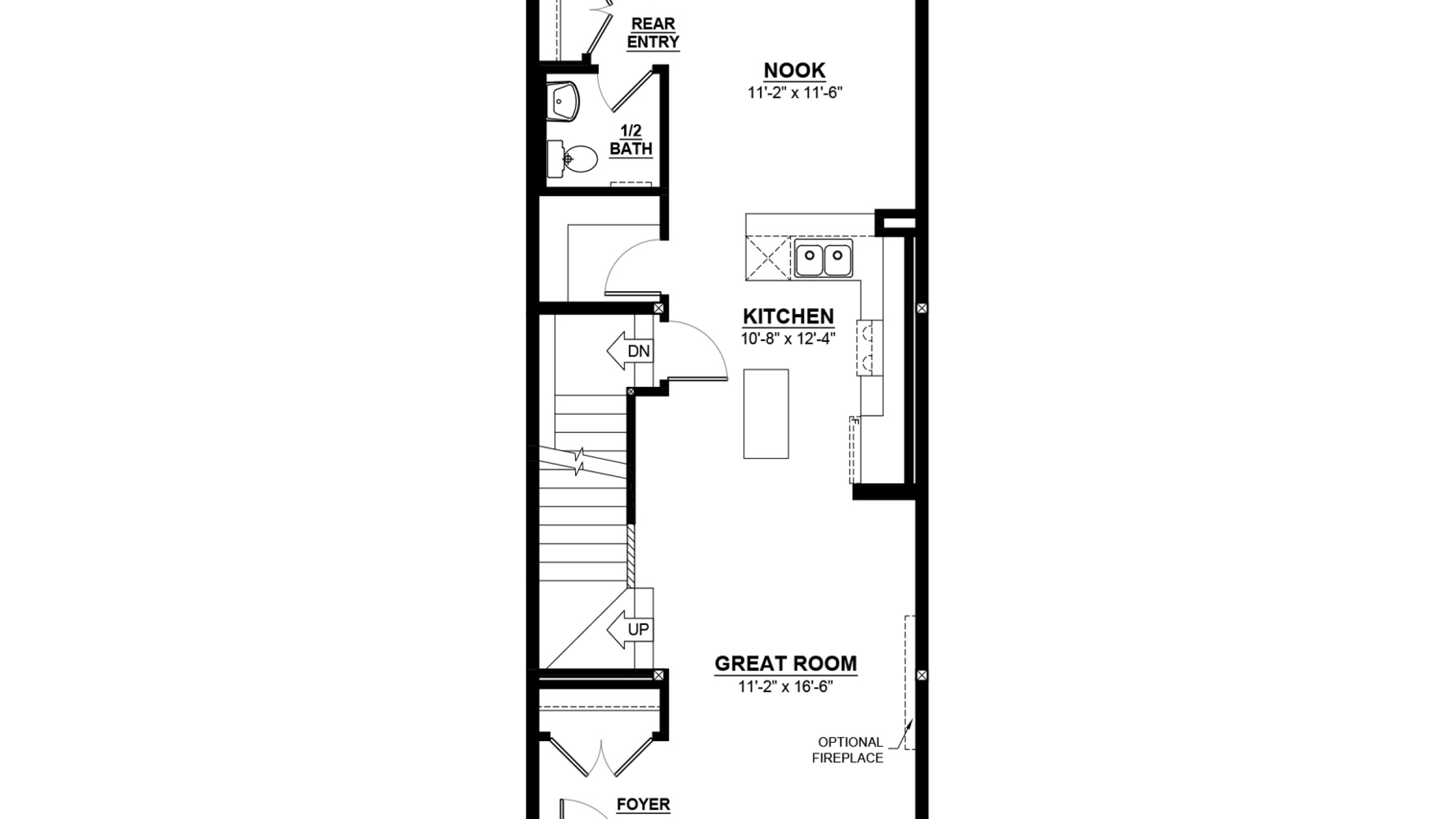
The Flex-z is a 1,537 square foot single family home featuring 3 bedrooms, a bonus room, 2.5 bathrooms and 9’ main floor ceilings. Enter the foyer with closet that leads into the great room through to the kitchen with an island and a walk-in pantry. The rear of the home includes a storage closet and a private half bath. Upstairs hosts a laundry closet, two bedrooms and a main bathroom at the rear of the home with a central bonus room. The Primary bedroom includes a walk-in closet and ensuite with window for additional lighting. Includes a side entry.

Actual product may differ slightly from the images, floor plans and renderings shown.

Floorplans & Photos
Community

Edgemont

A West Edmonton community set along the city's edge, offering natural surroundings, nearby amenities, and convenient access to major routes.

Explore the community

More homes in the area

Move-in Ready
Community: Edgemont
IMMEDIATE POSSESSION

9105 Elves Loop NW

3 Bed 2.5 Bath 1707 square feet

Home Type: Main Floor Bed & Bath, Side Entry, 9' Foundation

Sale Pending

Community: Edgemont
IMMEDIATE POSSESSION

9103 Elves Loop NW

3 Bed 2.5 Bath 1707 square feet

Sale Pending

Community: Edgemont
IMMEDIATE POSSESSION

8652 Edgemont Link NW

3 Bed 2.5 Bath 1783 square feet

Home Type: Side Entry

Sale Pending

Sales Consultants

Sales consultant Kevin Wong

587.701.1001 daytonahomesyeg

About Kevin

Kevin is our sales consultant in Edgemont.

Communities

Languages

  • English

Subscribe to our newsletter

Treaty Six Territory

We acknowledge that the land on which the Daytona Homes Edmonton office resides is on Treaty Six Territory–a traditional meeting ground, gathering place, and travelling route for many indigenous people. We honour and respect the history, languages, ceremonies and culture of the First Nations, Metis and Inuit who call this territory home.

© 2026 Daytona Homes. All Rights Reserved