Colt II - Show Home in The Uplands at Riverview

Colt II - Show Home in The Uplands at Riverview

Home type: Single Family Attached Garage

3 Bed 2.5 Bath 1815 square feet

Hours of operation

Mon - Thurs: 2-8pm
Weekends & Holidays - 12-5pm

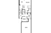
1,815 SQ FT | Smart Design. Big Possibilities.

The Colt proves that great design isn’t about size, it’s about how a home lives. At 1,815 sq ft, this thoughtfully planned layout delivers the features and flexibility you’d expect in a larger home, all within an efficient footprint.

The main floor offers a bright, open-concept flow between the kitchen, nook, and great room, creating a welcoming everyday gathering space. A private den near the front of the home is perfect for a home office, study space, or quiet retreat.

Upstairs, a central bonus room adds valuable flex space, while well-proportioned bedrooms ensure everyone has room to relax. The primary suite features a generous walk-in closet and comfortable ensuite, and the spacious main bathroom helps busy mornings run smoothly.

Make It Yours 

Available options include:

  • Main floor bedroom

  • Main floor full bathroom

  • Prep kitchen

  • Basement suite 

  • Side entry


Efficient, versatile, and thoughtfully designed, the Colt is proof that smart planning makes all the difference.

Actual product may differ slightly from the images, floor plans and renderings shown.

Floorplans & Photos
Community

The Uplands at Riverview

Close access to modern amenities and breathtaking nature.

Explore the community

Sales Consultants

Sales consultant Vince Zumbo

587.701.1001 zumbohomes

About Vince

Hi, I'm Vince! I pride myself in providing a one of a kind home buying experience, offering expertise in home customization and design. You can ask me any questions you have about buying or owning a home, qualifying for a mortgage, etc. Send me a message, call me or email to chat!

Languages

  • English

Subscribe to our newsletter

Treaty Six Territory

We acknowledge that the land on which the Daytona Homes Edmonton office resides is on Treaty Six Territory–a traditional meeting ground, gathering place, and travelling route for many indigenous people. We honour and respect the history, languages, ceremonies and culture of the First Nations, Metis and Inuit who call this territory home.

© 2026 Daytona Homes. All Rights Reserved