This Daytona home model includes high-quality home finishings and thoughtful features, making it safe, comfortable and budget friendly. You can choose from a variety of different floorplan options and styles to suit your unique lifestyle.
Floorplans & Photos Explore The Canyon II-d
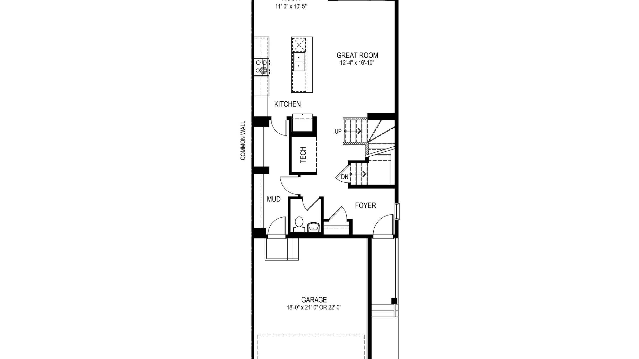
Actual product may differ slightly from the images, floor plans and renderings shown.
Move-in Ready These homes are ready and waiting for you
Some home models come in a variety of exterior styles to perfectly compliment the communities in which they’re built.
The Canyon II-d1 R
Home Type: West Facing Backyard onto Greenspace, Sunshine Basement, 9 Foot Foundation, Legal Basement Suite, Rear Deck with Stairs, Fireplace, Main Floor Tech Space, Open to Below
Sale Pending

The Canyon II-d2 R
Home Type: West Facing Backyard onto Greenspace, Sunshine Basement, 9 Foot Foundation, Legal Basement Suite, Rear Deck with Stairs, Fireplace, Main Floor Tech Space, Open to Below
Sale Pending

The Canyon II-d2 R
Home Type: West Facing Backyard, 9 Foot Foundation, Optional Side Entry, Fireplace
Sale Pending
Communities This model is available to build in...

Southbow Landing
Showhomes now open! Single family, and double front attached duplexes available.
Subscribe to our newsletter
Treaty Seven Territory
Daytona Homes Calgary is located on the traditional territories of First Nations Peoples of Treaty 7. The Treaty 7 Lands in Southern Alberta are home to the Kainai Nation, Piikani Nation, Siksika Nation, Tsuu T’ina Nation, and the Bearspaw, Chiniki and Wesley (Stoney- Nakoda) Nations. Calgary is also home to Region 3 of the Métis Nation of Alberta.
© 2025 Daytona Homes. All Rights Reserved