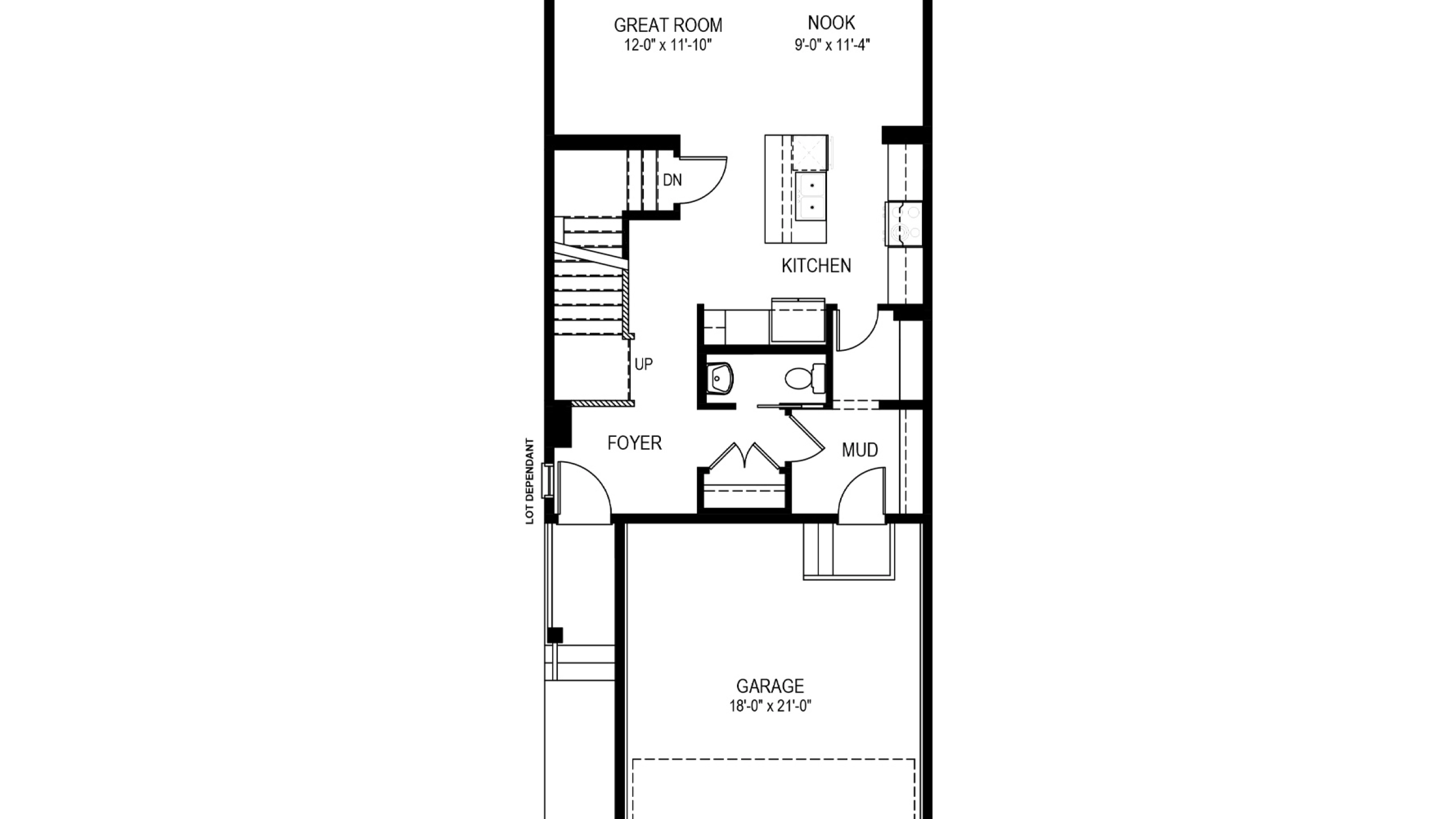
The Breeze-z II has a total living space of 1,874 Sq. Ft. featuring 3 bedrooms, 2.5 baths and an upper floor bonus room. The foyer of this home leads to the main floor living area with 9’ ceiling height. The kitchen includes an island with an extended eating bar and walk-through pantry to the mudroom and an attached, double car garage. The great room and nook sit across the back of this home adorned with windows and patio door access to the outdoors. Enter the upper floor to the two bedrooms, a main bathroom and full laundry room. Sitting central to the upper floor is the spacious bonus room. The oversized Primary Bedroom sits at the front of the home and includes a wal- in closet with a window for natural light and an ensuite featuring dual sinks and a soaker tub. Create more living space by adding an optional side entry and/or developing the optional basement.
Floorplans & Photos Explore The Breeze-z
Actual product may differ slightly from the images, floor plans and renderings shown.
Move-in Ready These homes are ready and waiting for you
Some home models come in a variety of exterior styles to perfectly compliment the communities in which they’re built.
The Breeze-z P
Home Type: 9 Foot Foundation, Oversized Primary Bedroom with Vaulted Ceiling, Fireplace, Tiled Ensuite Shower
$642,762 Pre-GST. Includes home & lot.

The Breeze-z P
Home Type: 9 Foot Foundation, Extended Great Room, Mudroom Built-Ins, Fireplace, Oversized Primary Bedroom
$638,000 Pre-GST. Includes home & lot.
Communities This model is available to build in...

Subscribe to our newsletter
Treaty Seven Territory
Daytona Homes Calgary is located on the traditional territories of First Nations Peoples of Treaty 7. The Treaty 7 Lands in Southern Alberta are home to the Kainai Nation, Piikani Nation, Siksika Nation, Tsuu T’ina Nation, and the Bearspaw, Chiniki and Wesley (Stoney- Nakoda) Nations. Calgary is also home to Region 3 of the Métis Nation of Alberta.
© 2025 Daytona Homes. All Rights Reserved