The Palisade II E

The Palisade II E

Home type: Single Family Attached Garage

3 Bed 2.5 Bath 1860 square feet

Priced at
$609,429

Pre-GST. Includes home & lot.

*Prices subject to change without notice. E.&O.E.

Possession Date August 2026

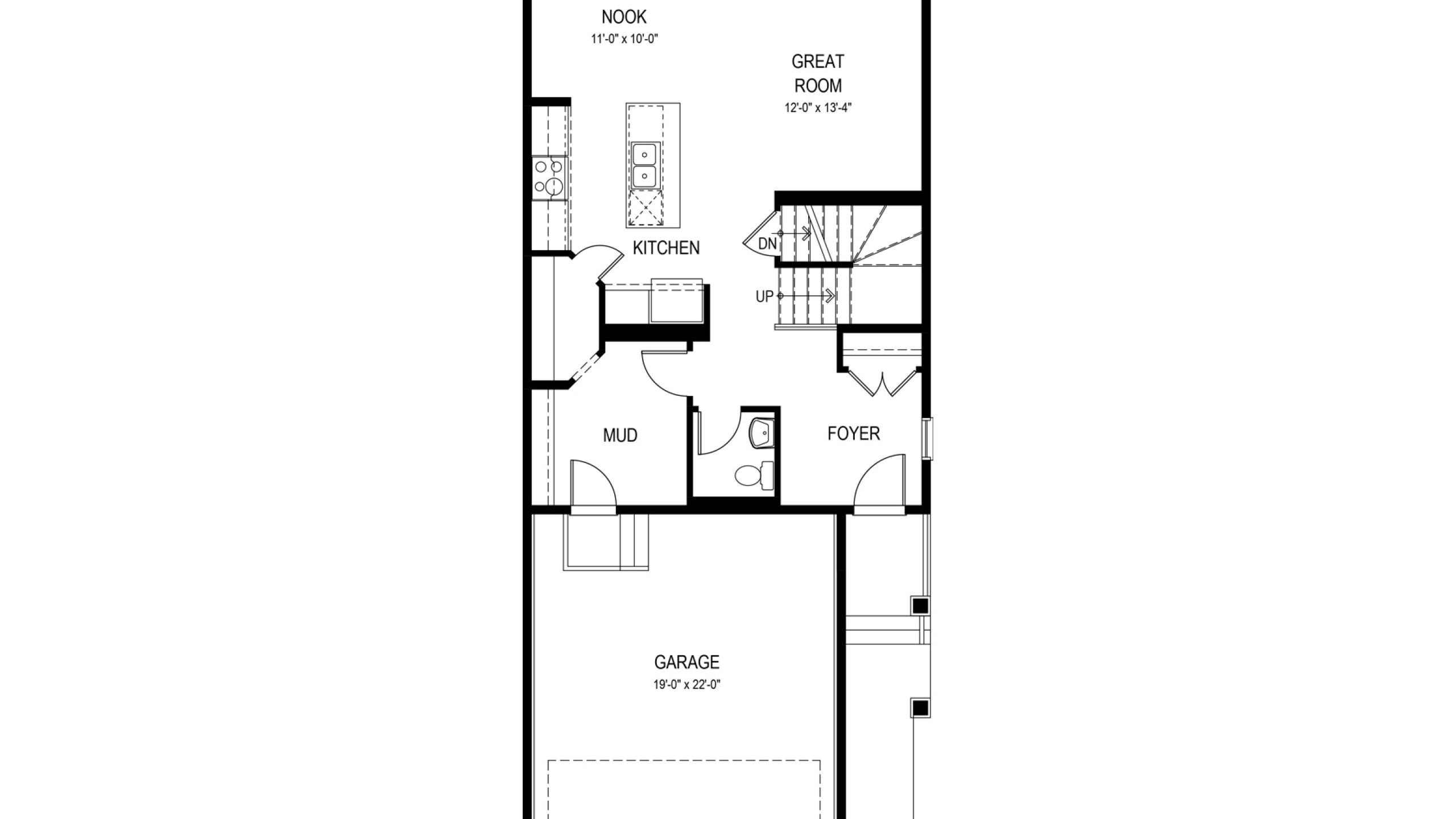
The Palisade II has a total living space of 1,860 sq.ft. featuring 3 bedrooms, 2.5 baths, a cozy bonus room retreat and 9’ main floor ceilings. Enter the foyer of this home with a closet and pass the half bath situated perfectly for privacy off the main living area. The great room, nook and kitchen with an island and extended eating bar sit at the rear of this home. Included in the kitchen is a walk-through pantry into the mud room with access to the double car garage for added convenience. The Upper floor includes a bonus room, full laundry room, main bathroom then two bedrooms at the rear of the home. The Primary bedroom is situated at the front of the home and includes a walk-in closet with window for added light and a well appointed ensuite with double sinks, a free-standing oval soaker tub and shower. Create more living space by developing the optional basement.

Actual product may differ slightly from the images, floor plans and renderings shown.

Floorplans & Photos
Community

Heartland

Check out our new laned models, in our premier Cochrane community!

Explore the community

More homes in the area

Move-in Ready
Community: Heartland
$5K Lot Rebate Available

The Escape E

3 Bed 2.5 Bath 1508 square feet

Home Type: 9 Foot Foundation, Optional Side Entry, Rear Deck, Detached Garage

$523,714 Pre-GST. Includes home & lot.

Community: Heartland
$5K Lot Rebate Available

The Escape HS

3 Bed 2.5 Bath 1508 square feet

Home Type: 9 Foot Foundation, Optional Side Entry, Rear Deck, Concrete Parking Pad

$495,143 Pre-GST. Includes home & lot.

Community: Heartland

The Frontier HS

3 Bed 2.5 Bath 1433 square feet

Home Type: 9 Foot Foundation, Optional Side Entry

$447,664 Pre-GST. Includes home & lot.

Sales Consultants

Sales consultant Meghan Scott

587.291.2288 daytonahomes.cochranesales

About Meghan

With nearly a decade of experience as a New Home Specialist, I understand the emotions and challenges that come with buying a home. I focus on honest communication, follow-through, and building trust—foundations of both my business and reputation.
I’m grateful to work with a partner who shares my values & client-first approach. Together, we’ve refined the homebuying process to make it clear, manageable, and well-supported from start to finish. Outside of work, I’m passionate about yoga, fitness, and spending quality time with my family—priorities that keep me grounded and motivated every day.

Communities

Languages

  • English

Sales consultant Josh Anderson

587.291.2288 daytonahomes.cochranesales

About Josh

Helping people find the right home is more than a job—it’s a responsibility I take to heart. With close to ten years in the new home industry, I’ve built my approach around clear communication, consistency, and creating a positive experience every step of the way. I’m proud to work alongside a teammate who shares the same dedication to putting clients first. We’ve created a smooth, supportive buying process that takes the guesswork out of homeownership.
When I’m not working with clients, I’m usually out on the golf course. It’s my way of unwinding, staying sharp, and keeping a healthy sense of competition alive.

Communities

Languages

  • English

Subscribe to our newsletter

Treaty Seven Territory

Daytona Homes Calgary is located on the traditional territories of First Nations Peoples of Treaty 7. The Treaty 7 Lands in Southern Alberta are home to the Kainai Nation, Piikani Nation, Siksika Nation, Tsuu T’ina Nation, and the Bearspaw, Chiniki and Wesley (Stoney- Nakoda) Nations. Calgary is also home to Region 3 of the Métis Nation of Alberta.

© 2026 Daytona Homes. All Rights Reserved